подвижной трубчатой перемычки, кольцеобразно расположенными внутри, подпружиненными пальцеобразными
контактами;
неподвижно закрепленного дутьевого поршня;
подвижного дутьевого цилиндра.
Все это устройство заключено в корпус из изоляционного материала (в КРУЭ), или из фарфора (в силовых выключате-
лях наружной установки). Снаружи к корпусу подключены токопроводы, обеспечивающие электрическую связь с соседними
модулями. Подвижные части дугогасительной камеры приводятся в движение штангой от электрогидравлической приводной
системы силового выключателя.
Наружные токопроводы, обе контактные трубы и пальцеобразные контакты в трубчатой перемычке образуют токовую
цепь внутри силового выключателя. Установленные в трубчатой перемычке пружины при этом прочно прижимают пальце-
образные контакты к трубе, так что обеспечивается надёжный контакт.
Во время процесса отключения – за счёт движения дутьевого цилиндра относительно неподвижного дутьевого поршня
– происходит сжатие газа в дутьевом цилиндре. Дутьевой цилиндр охватывает при этом гасительное устройство как камера
сжатия. Дуга, которая горит при размыкании между гасительными соплами и коммутационными контактами, за счет потока
газа и за счёт собственных электродинамических сил направляется в гасительные сопла и гасится.
За счет сниженного расхода энергии на коммутации и дальнейшей разработки дугогасительной камеры, появилась воз-
можность сконструировать гидропривод еще более компактным:
применяемое до сих пор двухступенчатое управление с упреждением было заменено одноступенчатым управлением
с упреждением;
отпала необходимость в целом ряде внешних соединительных труб;
стало возможным уменьшить объём маслобака.
Это означает меньше компонентов, меньше мест уплотнений и значительный плюс к надежности эксплуатации.
Привод работает под давлением масла, которое постоянно действует на меньшую поверхность дифференциального
поршня. Через гидравлические клапаны с электроприводом заполняется большая поверхность поршня маслом под давлени-
ем, либо без давления, что определяет направление движения.
Система управления
. Блок управления силового выключателя и блок контроля давления элегаза ячейки во всех видах
исполнения КРУЭ 8DP3 высокого напряжения встроены с лицевой стороны. Необходимый местный шкаф управления в
большинстве случаев расположен свободно стоящим напротив лицевой стороны ячейки.
Местный шкаф управления содержит все необходимые устройства для управления и контроля ячейки. В основном осу-
ществляя следующие функции:
активирование всех коммутационных аппаратов ячейки на уровни ячейки и дистанционно по цифровым каналам с
главного щита управления (выполнимы только допустимые переключения);
оптические сообщения через световые диоды или сигнальные табло;
показания величины тока и напряжения; возможно ещё и показание величины мощности;
защита всех вторичных цепей.
Одним из основных элементов в местном шкафу управления является электронный прибор защиты от неправильных
переключений, в котором наряду с элементами активирования, находятся все электрические блокировки ячейки. Эта блоки-
ровка надежна от ошибок, т.е. при правильном активировании недопустимые переключения исключены.
Один на все РУ центральный блок защиты от неправильных переключений перенимает при этом на себя задачи блоки-
ровки, выходящие за пределы функции ячейки, и контрольные функции системы.
Через прибор защиты от неправильных переключений могут активироваться все коммутационные аппараты ячейки с
места, со щита управления или с дистанционного центра управления.
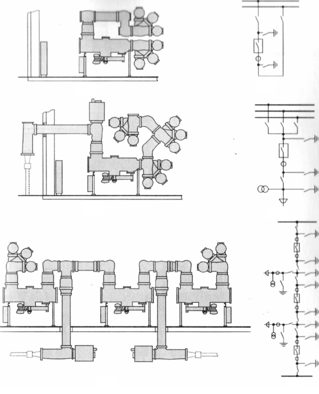
Подключения ячеек выключателей к оборудованию приведены на рис. 3.28 – 3.30.
КРУЭ сборных шин приведена на рис. 3.31.