
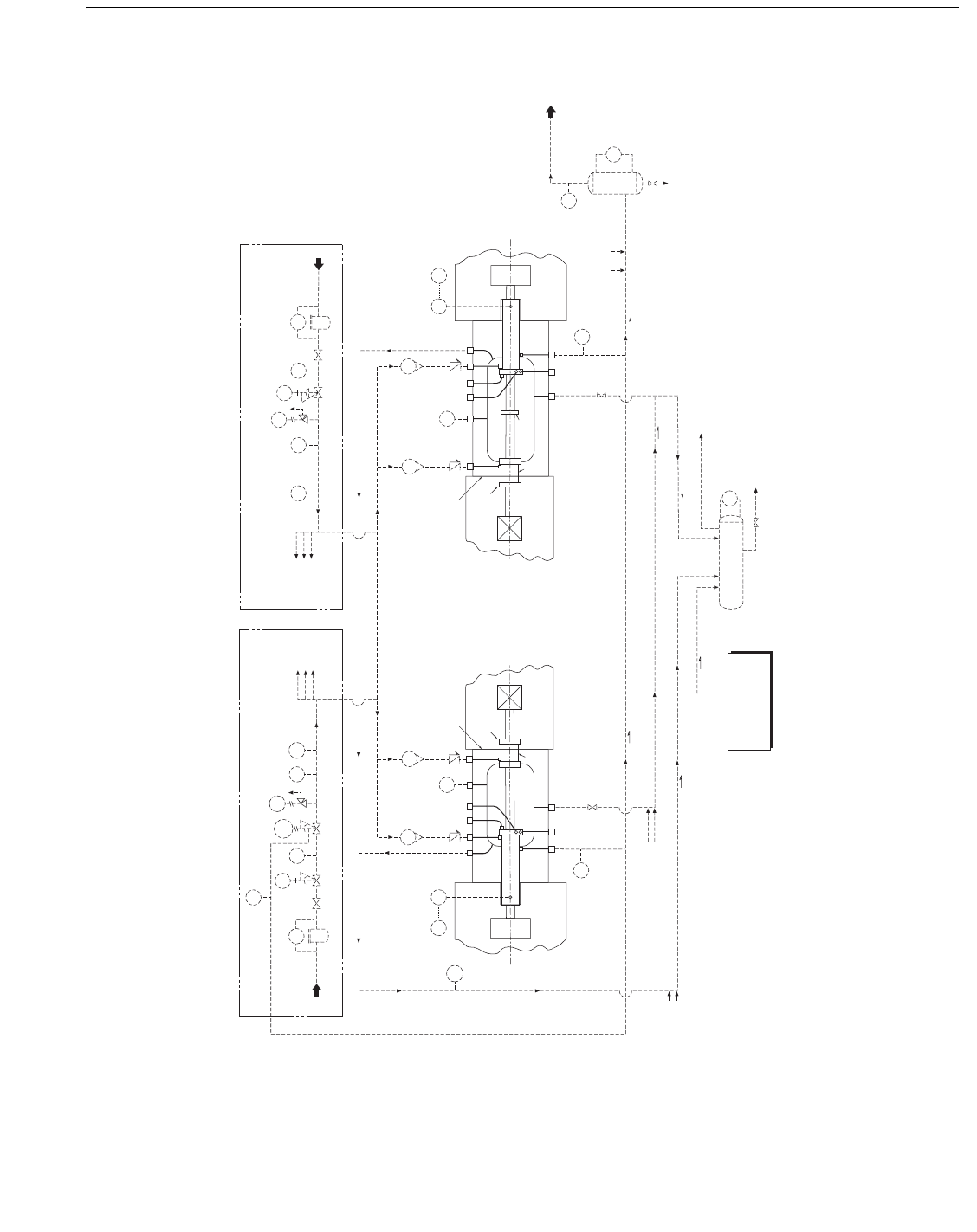
Figure I-2—Typical Buffered Two Compartment Distance Piece Vent, Drain, and Buffer Arrangement to Minimize
Process Gas Leakage
PI
PRV
To disposal system
(e.g. vapor recovery
or low pressure are)
(note 12)
Oil and condensate
drain
From other
cylinders
(note 13)
Leak os from cylinder and clearance
pocket unloaders. (optional - note 13)
Inboard distance piece drain
Outboard distance piece drain
Pressure packing combined vent and drain
(Monitoring)
(note 9)
Nom.
6 BAR
(100 PSIG)
Buer gas supply
Filter
(note 2)
(note 9)
To other
cylinders
(note 13)
(note 9)
Buer gas pressure P
1
(note 2)
Distance piece vent [see I.5 (i)]
Buer gas pressure P
2
(notes 2, 10)
PI
5-50 SCFH
5-50 SCFH
Monitoring
B B B B A
D
D G
B
A
C B
E
F
Frame end
Crosshead
Crosshead guide
Inboard
distance piece
Access opening
(solid cover)
Outboard
distance piece
Access opening
(solid cover)
Oil wiper packing
(note 3)
Partition
Optional inboard
distance piece purge
Intermediate
partition
Optional intermediate partition
packing purge
Oil slinger
Piston rod
Pressure
packing
(1)
(2); (note 4)
Piston
Cylinder
PI
PRV
FI
PI
FI
5-50 SCFH
5-50 SCFH
(Monitoring)
BBBBA
D
DG
BACB
E
F
Frame end
Crosshead
Crosshead guide
Inboard
distance piece
Access opening
(solid cover)
Outboard
distance piece
Access opening
(solid cover)
Oil wiper packing
(note 3)
Partition
Optional inboard
distance piece purge
Intermediate
partition
Optional intermediate partition
packing purge
Oil slinger
Piston rod
Pressure
packing
(1)
(2); (note 4)
Piston
Cylinder
TETI TE TI
PRV
PRV
PDI
FG
FG
From other
cylinders
(note 13)
NC
From other
cylinders
(note 13)
From other
cylinders
(note 13)
Slope
Slope
Slope
Slope
PCV
PCV
DPCV
PI
PSLPI
PI
PSL
Nom. 6 BAR
(100 PSIG)
Buer gas supply
Filter
(note 2)
(note 9)
To other
cylinders
(note 13)
To other cylinders
(note 13)
To other cylinders
(note 13)
(note 9)
PRV
PRV
PDI
PCV
PI
PSL PI
PSL PI
PCV
PSH
TI
NO
Distance piece
liquid collection pot
NC
LG
Slope
NC NO
(Monitoring)
NC
Slope
To
drain
TI
PI
Packing leakage
liquid collection pot
To disposal system
(note 12)
Oil and condensate
drain
LG
FI
FI
Notes:
1. See 6.12.2 and 6.13.1.6
2. Buer gas pressure P
1
must be at
least 1 bar (15 pounds per square
inch) higher than the disposal
system pressure at connection A or
connection G (in the outboard
distance piece) whichever is higher.
Buer gas pressure P
2
must be at
least 1 bar (15 pounds per square
inch) higher than the disposal
system pressure at connection A (in
the outboard distance piece).
3. The oil wiper packing may be on
the distance piece side of the
partition and integral with the
buer seal packing (1).
4. The intermediate partition
packing (2) may be buered in
addition to the pressure packing in
which case the inboard distance
piece may be vented to the
atmosphere.
5. In some cases, lower buer and
vent pressures than the examples
shown may be necessary
to
accomodate the pressure
limitations of large distance pieces.
6. Several other distance piece and
packing arrangements for
pressuring, buering, purging, and
venting are possible, and the
arrangement to be used should be
agreed upon between the
purchaser and the vendor.
7. The
orientation of the distance
piece and packing ange/case
connections may vary depending
on the individual distance piece and
the type of packing case used.
8. The intermediate partition
packing (2) may be located in the
outboard distance piece on the
other side of the partition from that
sho
wn.
9. Some users may choose to
shutdown as well as alarm in some
cases.
10. Buer gas may be fed either to
the buer seal packing (1) as
shown, or directly into the inboard
distance piece.
11. Fixed pressure control or
dierential pressure
control
depending on the variability of the
disposal system.
12. Keep the disposal from the
distance piece liquid collection pot
and packing leakage liquid
collection separate. The distance
piece liquid collection pot should
be connected to a vapor recovery
system or a low pressure are
system. The packing leakage liquid
collection pot can be connected to
either a vapor recovery, a low
pressure are, or a conventional
are system.
13. To or from other cylinders on
the same machine. When dierent
cylinders on a common frame are in
dierent services, individual
isolation of vents and drains may be
required.
Intended Mode of Operation
• The inboard distance piece is full of inert buer gas and will stabilize at a gauge pressure of 0.7 to 1 bar
(10 to 15 pounds per square
inch). Infrequent oil draining is required.
• The outboard distance piece operates at disposal system pressure-usually a gauge pressure of 0.15 to 0.4 bar (2 to 5 pounds per
square inch) and is lled with a mixture of buer gas and
process gas. The packing vent TI allows monitoring of the packing
condition. There is normally no process gas leakage into the distance piece. Under abnormal conditions (such as packing
deterioration), the rate of leakage of process gas into the crosshead guide is dependent on the condition of the pressure packing,
the
intermediate partition packing (2), and the buer seal packing (1).
• Alternatively, the disposal system may be operated at a vacuum, at an absolute pressure of 0.7 to 0.9 bar (10 to 13 pounds per
square inch), based on an atmospheric pressure of 1 bar
(14.7 pounds per square inch), in which case the crosshead guide leakage
may be into the distance piece, and a pump could be needed for the distance piece liquid collection pot drain.
• The liquid collection pots will require occasional draining.
• The distance piece vent header PSH is
set to alarm (or shutdown) if the pressure packing on one cylinder fails.
Legend:
A Vent, distance piece – NPS 1.50
B Purge, buer, or pressure, packing or distance piece – NPS 1.00
C Lube, pressure packing – NPS 1.00
D Drain, distance piece – NPS 1.00
E Coolant out, pressure packing – NPS 1
.00
F Coolant in, pressure packing – NPS 1.00
G Common vent and drain, pressure packing – NPS 1.00
(1) Buer seal packing
(2) Intermediate partition packing
- - - - - - - - - - - Electrical signal
Typically, all components external to distance piece or as shown in broken line – –
– – – are furnished by purchaser.
Note:
This is a typical system and may
require modication based on
specic user requirements
(see I.1).
FOR VARIABLE PRESSURE DISPOSAL SYSTEMS – NOTE 11 FOR CONSTANT PRESSURE DISPOSAL SYSTEMS – NOTE 11
TYPE C DISTANCE PIECE TYPE D DISTANCE PIECE
PI
162 API STANDARD 618
Copyright American Petroleum Institute
Provided by IHS under license with API
Licensee=IHS Employees/1111111001, User=Japan, IHS
Not for Resale, 01/01/2008 21:15:45 MST
No reproduction or networking permitted without license from IHS
--```,`,,,,`,``,,```,`,,`,,,,`-`-`,,`,,`,`,,`---