
162 163
I,II,IV,V
eSК
S,
rК
η
=
τ
нлпз
л
з2 л
100
(12.9)
äå å
í
I,II,IV,V
— íîðìîâàíå çíà÷åííÿ ÊÏÎ çàëåæíî â³ä ïîÿñó ñâ³òëîâîãî
êë³ìàòó; S
â
, S
ë
— ïëîù³ ñâ³òëîâèõ ïðîð³ç³â (ó ñâ³òë³) ïðè áîêîâîìó
é âåðõíüîìó îñâ³òëåíí³ â³äïîâ³äíî, ì
2
; S
ï
— ïëîùà ï³äëîãè ïðèì³ùåí-
íÿ, ì
2
; η
â
— ñâ³òëîâà õàðàêòåðèñòèêà â³êîí; Ê
ç
— êîåô³ö³ºíò çàïàñó,
ùî âðàõîâóº çíèæåííÿ îñâ³òëåíîñò³ â ïðîöåñ³ åêñïëóàòàö³¿ çàñêëåííÿ
³ çàëåæèòü â³ä êîíöåíòðàö³¿ øê³äëèâèõ ðå÷îâèí ó ïîâ³òðÿíîìó ñåðå-
äîâèù³ ðîáî÷î¿ çîíè é ðîçòàøóâàííÿ ñâ³òëîïðîïóñêàþ÷îãî ìàòåð³à-
ëó; Ê
áóä
— êîåô³ö³ºíò, ÿêèé âðàõîâóº çàòåìíåííÿ â³êîí áóä³âëÿìè, ùî
ðîçòàøîâàí³ íàâïðîòè; τ
ç
— çàãàëüíèé êîåô³ö³ºíò ñâ³òëîïðîïóñêàí-
íÿ, âèçíà÷àºòüñÿ çà ôîðìóëîþ
τ
ç
= τ
1
⋅τ
2
⋅τ
3
⋅τ
4
⋅τ
5
, (12.10)
äå τ
1
— êîåô³ö³ºíò, ùî âðàõîâóº âòðàòè ñâ³òëà ó ñâ³òëîïðîïóñêàþ÷îìó
ìàòåð³àë³; τ
2
— êîåô³ö³ºíò, ùî âðàõîâóº âòðàòè ñâ³òëà ó â³êîííèõ ðà-
ìàõ; τ
3
— êîåô³ö³ºíò, ùî âðàõîâóº âòðàòè ñâ³òëà ó òðèìàëüíèõ êîíñòðóê-
ö³ÿõ (ïðè áîêîâîìó îñâ³òëåíí³ τ
3
= 1); τ
4
— êîåô³ö³ºíò, ùî âðàõîâóº âòðà-
òè ñâ³òëà â ñîíöåçàõèñíèõ ïðèñòðîÿõ; τ
5
— êîåô³ö³ºíò, ùî âðàõîâóº
âòðàòè ñâ³òëà â çàõèñí³é ñ³òö³, ÿêà âñòàíîâëþºòüñÿ ï³ä ë³õòàðÿìè,
ïðèéìàºòüñÿ òàêèì, ùî äîð³âíþº 0,9; η
ë
— ñâ³òëîâà õàðàêòåðèñòèêà
ë³õòàðÿ àáî ñâ³òëîâèõ îòâîð³â ó ïëîùèí³ ïîêðèòòÿ; r
1
— êîåô³ö³ºíò,
ùî âðàõîâóº ï³äâèùåííÿ ÊÏÎ ïðè áîêîâîìó îñâ³òëåíí³ çàâäÿêè ñâ³òëó,
ÿêå â³äáèâàºòüñÿ â³ä ïîâåðõîíü ïðèì³ùåííÿ ³ ï³äñòèëêîâîãî øàðó,
ÿêèé ïðèëÿãຠäî áóä³âë³; r
2
— êîåô³ö³ºíò, ùî âðàõîâóº ï³äâèùåííÿ
ÊÏÎ ïðè âåðõíüîìó îñâ³òëåíí³ çàâäÿêè ñâ³òëó, ÿêå â³äáèâàºòüñÿ â³ä
ïîâåðõîíü ïðèì³ùåííÿ; Ê
ë
— êîåô³ö³ºíò, ùî âðàõîâóº òèï ë³õòàðÿ.
Çíà÷åííÿ âåëè÷èí, ùî âõîäÿòü äî ôîðìóë (12.8)—(12.10) âèáèðà-
þòü çã³äíî ç³ ÑÍèÏ II-4-79/95 [1].
12.1.1. Ëàáîðàòîðíå îáëàäíàííÿ
Ó âèðîáíè÷èõ ïðèì³ùåííÿõ äëÿ êîíòðîëþ çà îñâ³òëåí³ñòþ âèêî-
ðèñòîâóºòüñÿ ëþêñìåòð Þ-116, ùî º ñïîëó÷åííÿì ñåëåíîâîãî ôîòîåëå-
ìåíòà é ì³ë³àìïåðìåòðà, øêàëà ÿêîãî ãðàäóéîâàíà â ëþêñàõ.
Ïðèíöèï 䳿 ëþêñìåòðà ´ðóíòóºòüñÿ íà ÿâèù³ ôîòîåëåêòðè÷íîãî
åôåêòó. Ñâ³òëîâèé ïîò³ê, ïàäàþ÷è íà ôîòîåëåìåíò, âèêëèêຠïðîò³êàí-
íÿ ôîòîñòðóìó ÷åðåç ì³ë³àìïåðìåòð, ÿêèé â³äõèëÿº ñòð³ëêó ì³ë³àì-
ïåðìåòðà.
Çíà÷åííÿ ñòðóìó é, îòæå, â³äõèëåííÿ ñòð³ëêè ì³ë³àìïåðìåòðà
º ïðîïîðö³éíèìè îñâ³òëåíîñò³ íà ðîáî÷³é ïîâåðõí³ ôîòîåëåìåíòà.
Ëþêñìåòð Þ-116 ìຠäâ³ îñíîâí³ øêàëè: 0—100 ³ 0—30. Íà êîæí³é
³ç íèõ òî÷êàìè ïîçíà÷åíî ïî÷àòîê ä³àïàçîíó âèì³ðþâàíü: íà øêàë³
0—100 òî÷êà ðîçòàøîâàíà íàä ïîçíà÷êîþ 17, íà øêàë³ 0—30 — íàä
ïîçíà÷êîþ 5.
Çà íåîáõ³äíîñò³ ðîçøèðèòè ìåæ³ âèì³ðþâàíü ó 10, 100 ³ 1000 ðàç³â
íà ôîòîåëåìåíò íàä³âàþòü ïîãëèíàëüí³ íàñàäêè (Ì, Ð, Ò). Íà ïåðåäí³é
ïàíåë³ âèì³ðþâà÷à º êíîïêè ïåðåìèêà÷à øêàë ³ òàáëè÷êà ç³ ñõåìîþ,
ùî ïîâ’ÿçóº ä³þ êíîïîê ³ âèêîðèñòîâóâàíèõ íàñàäîê ³ç ä³àïàçîíàìè
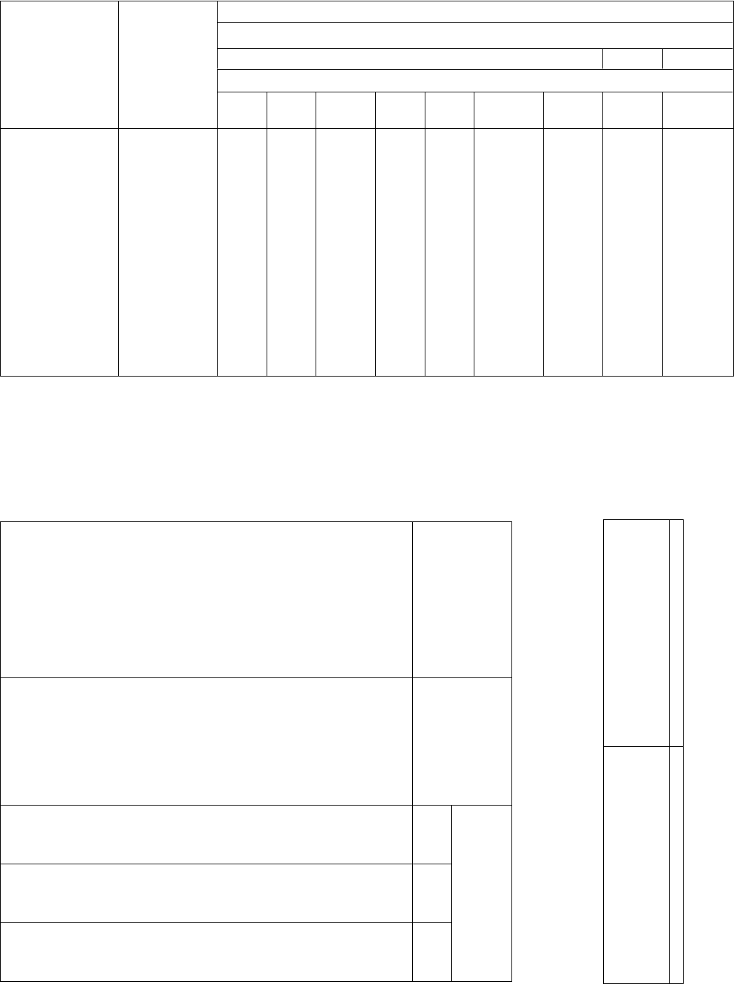
âèì³ðþâàíü, íàâåäåíèìè â òàáë. 12.1.
Òàáëèöÿ 12.1
ijàïàçîí âèì³ðþâàíü îñâ³òëåíîñò³ ç âèêîðèñòàííÿì íàñàäîê
Äëÿ çìåíøåííÿ êîñèíóñíî¿ ïîõèáêè, ïîâ’ÿçàíî¿ ç êîíñòðóêòèâíè-
ìè îñîáëèâîñòÿìè ëþêñìåòðà, âèêîðèñòîâóþòü íàñàäêó íà ôîòîåëåìåíò
³ç ï³âñôåðè, âèêîíàíî¿ ç á³ëî¿ ïëàñòìàñè, ÿêà ðîçñ³þº ñâ³òëî, ³ íåïðîçî-
ðîãî ïëàñòìàñîâîãî ê³ëüöÿ, ÿêå ìຠñêëàäíèé ïðîô³ëü.
Íàñàäêà ïîçíà÷åíà áóêâîþ «Ê», ÿêà ðîçòàøîâóºòüñÿ íà ¿¿ âíóò-
ð³øí³é ñòîðîí³, ³ âèêîðèñòîâóºòüñÿ íå ñàìîñò³éíî, à îäíèì ç³
ñâ³òëîô³ëüòð³â (Ì, Ð, Ò).
Ëþêñìåòð ãðàäóþþòü áåç íàñàäîê, ³ íà ä³àïàçîíàõ âèì³ðþâàíü
5—30 ³ 17—100 ëê â³í ìຠíàéìåíøó ïîõèáêó âèì³ðþâàíü, ÿêà ñòàíî-
âèòü ± 10%.
Ëþêñìåòð Þ-116 ïðèçíà÷åíèé äëÿ ðîáîòè ïðè òåìïåðàòóð³ íàâêî-
ëèøíüîãî ïîâ³òðÿ â³ä +10
äî +35°Ñ ³ â³äíîñí³é âîëîãîñò³ íå á³ëüøå 80%
ïðè òåìïåðàòóð³ +25°Ñ.
Ïåðåä âèì³ðþâàííÿì ñòð³ëêó ãàëüâàíîìåòðà çà äîïîìîãîþ êîðåê-
òîðà âñòàíîâëþþòü ó íóëüîâå ïîëîæåííÿ. Ïðè öüîìó ôîòîåëåìåíò
â³ä’ºäíóºòüñÿ â³ä âèì³ðþâà÷à ëþêñìåòðà.
Äëÿ âèì³ðþâàííÿ îñâ³òëåíîñò³ ôîòîåëåìåíò âñòàíîâëþþòü ó ïëî-
ùèí³ âèì³ðó. Ç’ºäíóþòü ôîòîåëåìåíò ³ç âèì³ðþâà÷åì ïðèëàäó.
Ïðè äîñòàòíüî âèñîê³é ³íòåíñèâíîñò³ ñâ³òëîâîãî ïîòîêó, à îòæå,
âèñîêîìó ð³âí³ îñâ³òëåíîñò³, âèì³ðè ïîòð³áíî ïî÷èíàòè ç âèêîðèñòàí-
íÿì íàñàäîê Ê, Ò, êîðèñòóþ÷èñü äëÿ â³äë³êó ïîêàçàíü ñïî÷àòêó øêà-
ëîþ 0—100 (ïðàâà êíîïêà).
ßêùî ñòð³ëêà âèì³ðþâà÷à â³äõèëÿºòüñÿ íèæ÷å 17 ïîä³ëîê, íåîáõ³ä-
íî ïåðåìêíóòè ïðèëàä íà øêàëó 0—30 (ë³âà êíîïêà). Ïîêàçàííÿ ïðè-
ëàäó ïî â³äïîâ³äí³é øêàë³ ìíîæèòè íà êîåô³ö³ºíò ïåðåë³êó, ïîäàíèé
ó òàáë. 12.1, çàëåæíî â³ä íàñàäîê, ÿê³ âèêîðèñòîâóþòüñÿ (àáî çàçíà÷å-
íèé íà íàñàäêàõ, ÿê³ âèêîðèñòîâóþòüñÿ).
ϳñëÿ çàê³í÷åííÿ âèì³ðþâàíü â³ä’ºäíàòè ôîòîåëåìåíò â³ä âèì³ðþ-
âàëüíîãî ïðèëàäó, íàä³òè íà ôîòîåëåìåíò ô³ëüòð-ïîãëèíà÷, óêëàñòè
ôîòîåëåìåíò ó ôóòëÿð.
Діапазон
вимірювання,
лк
Умовне позначення
двох одночасно
використовуваних насадок
на фотоелементі
Загальний номінальний коефіцієнт
ослаблення використовуваних двох
насадок — коефіцієнта перелічення
шкали
5—30
17—100
50—300
170—1000
50—3000
170—10000
50—30 000
170—10 0000
Без насадки з відкритим
фотоелементом
К, М
К, Р
К, Т
1
10
100
1000