
2) Участки, опертые на три стороны,
- в плите базы подкрановой ветви;
- в плите базы наружной ветви,
где 
- коэффициенты, зависящие от отношения размера 
закрепленной стороны к размеру незакрепленной 
 
соответственно. При отношении 
 участок плиты 
рассчитывается как консоль: 
.
3) Участки, закрепленные по одной стороне,
- в плите базы подкрановой ветви;
- в плите базы наружной ветви.
Значения коэффициентов 
 приведены в таблицах 13 и 14.
Напряжения  
  не   должны   превышать   расчетное
сопротивление бетона фундамента смятию.
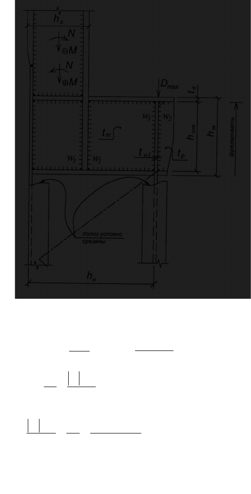
Толщина   плиты   назначается   в   пределах  
  мм.   Если
требуемая   толщина   плиты   получается   большой   и   имеет   место
существенное   различие   изгибающих   моментов   на   участках   I-III,
рекомендуется   изменить   конструкцию   базы,   укрепив   участки   с
большими   изгибающими  моментами   при   помощи   ребер   жесткости,
диафрагм и т.п.
Толщина   траверсы   назначается   от   10   мм   до   16   мм.   Высота
траверсы определяется из условия размещения швов крепления ее к
ветви колонны
- число сварных швов (обычно 
- суммарная длина сварных швов,
      
- усилие в рассматриваемой ветви;
      
.
Если торцы ветвей колонны не фрезеруются, необходимо 
рассчитать на усилие 
 швы крепления траверсы к плите.
При большом изгибающем моменте и небольшой продольной силе
в   нижнем   сечении   колонны   в   анкерных   болтах   могут   возникать
усилия растяжения