102
Температура нагрева слитков колеблется в зависимости от марки ста-
ли в пределах 1200-1350 °С. Максимальная температура дыма на входе в
регенератор 1400-1450 °С, на выходе – 500-600 °С. Максимальная темпера-
тура подогрева воздуха и газа 900-1000 °С.
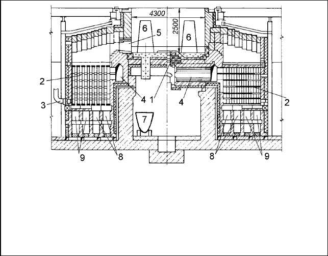
Для изменения направления дыма, факела (реверс факела) посредст-
вом изменения направления потоков газа и воздуха служат
перекидные
(переводные) устройства: для газа – герметичный клапан золотникового
типа (клапан Фортера), показанный на рис. 6.2, а для воздуха – негерме-
тичный клапан мотылькового типа (клапан "симплекс"). В клапане Фортера
герметичность достигается применением водяных затворов. Клапаны под-
соединены к регенераторам колодца посредством системы дымоходов. К
каждому клапану от регенераторов подходят два дымохода (левый
и пра-
вый), расположенные под регенераторами в два этажа (рис. 6.2). Между
этими каналами на входе в клапан расположен центральный канал, связан-
ный с дымовой трубой системой дымоходов.
Рассмотрим работу клапанов. Пусть, как показано на схеме рис. 6.2, в
правые регенераторы поступают газ и воздух. Для этого золотник клапана
Фортера и мотылек
клапана "симплекс" перекрывают центральный и пра-
вый каналы в клапанах. По нижним дымоходам из левых регенераторов по-
ступает дым в правый канал, а затем после разворота на 90 ° – в централь-
ный канал. В период перекидки золотник и мотылек меняют свое положе-
ние. Теперь газ и воздух поступают в правые каналы клапанов
и направля-
ются для нагрева в левые регенераторы. Дым из правых регенераторов по
верхним дымоходам поступает в левые каналы клапанов, а затем после раз-
ворота в центральный дымоход. Таким образом, в центральные каналы всё
время поступает дым из регенераторов.
Дым из центрального канала направляется на дымовую трубу по сле-
дующей
схеме. Сначала дым от каждой ячейки поступает в сборный дымо-
ход для двух ячеек. Аналогично свой дымоход имеют и две другие ячейки.
В общий дымоход перед дымовой трубой поступает дым от 4 ячеек через
два сборных дымохода.
В дымоходе для каждой ячейки и в общем дымоходе для 4 ячеек уста-
новлены шиберы для
регулировки тяги дымовой трубы. На группу из 4
ячеек установлен один вентилятор для подачи воздуха. В каждом воздухо-
проводе, идущем к клапану "симплекс", установлена поворотная заслонка.
Факел в регенеративном колодце находится достаточно близко к по-
дине и обеспечивает температуру подины около 1370 °С, что является по-
роговым значением для перевода шлака в
жидкое состояние. Шлак состоит
из окалины, осколков футеровки и некоторых легкоплавких соединений,
остающихся в прибыльной части слитка после его разливки и охлаждения.
Через шлаковую лётку шлак удаляется с подины непрерывно, а также пе-
риодически при специальном нагреве пустого колодца.