
Интеллектуализация деятельности механического завода 150
требуемой полноты моделей состояния; 3) разработка стратегии оцени-
вания наблюдаемых параметров; 4) разработка стратегии выработки
решения на оптимальное управление.
Все перечисленные проблемы в той или иной степени сталкиваются
с априорной неопределенностью информации о моделируемых объек-
тах. Это обстоятельство существенно уже на этапе формализации моде-
лей конкретных технологических процессов, видов оборудования, мате-
риальных
потоков, средств измерения, контроля и т.п. Это касается объ-
емных размерных цепей, нормирования точности деталей, узлов, сбо-
рок, процессов физико-механического взаимодействия режущего инст-
румента и деталей, неопределенности вероятностных характеристик,
процессов и объектов, изменчивости характеристик в статике и динами-
ке вследствие износа, старения, энергетических воздействий в процессе
обработки, влияния окружающей
среды и других факторов. Можно ут-
верждать, что, чем выше требования к качеству процессов и произ-
водств (точности, надежности и др.) и чем сложнее структура объектов
CIMS, охватываемых CAQ-наблюдателем, тем выше степень априорной
неопределенности в оценке параметров моделируемых объектов. Кроме
того, гибкость, заложенная в CIMS, приводит к изменчивости характе-
ристик, параметров и
структуры в процессе самого функционирования.
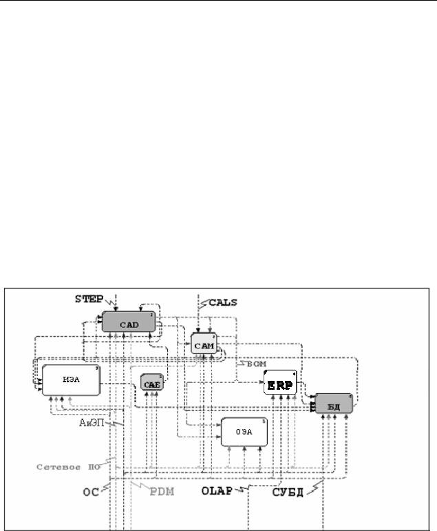
Интеллектуализация инженерно–конструкторской и
технологической деятельности на примере крупного
производственного предприятия – механического завода
Автоматизированная система управления предприятием на базе
стандартов ERP, обеспечивая весь необходимый набор информацион-
ных услуг, от планирования до управления складами и производством,
от закупок сырья, материалов, комплектующих, до сбыта готовой про-
дукции, включая финансы и бухгалтерию, должна опираться на абсо-
лютно точные данные.
Чтобы информацию можно было превращать в данные и наоборот
,
нужна система, способ представления информации или, иначе говоря,
язык. Такая система далеко не однозначна. Поэтому одна и та же ин-
формация может быть представлена различными данными и, наоборот,
одни и те же данные могут изображать различную информацию. Более
того, данные могут и не изображать никакой информации, если они не
удовлетворяют
требованиям никакой системы представления данных,
или же информация не может быть извлечена, если система представле-
ния нам неизвестна. На систему представления информации влияют как