
112
2
2
1
2
1
РВРПРП
РВ
РПРПРП
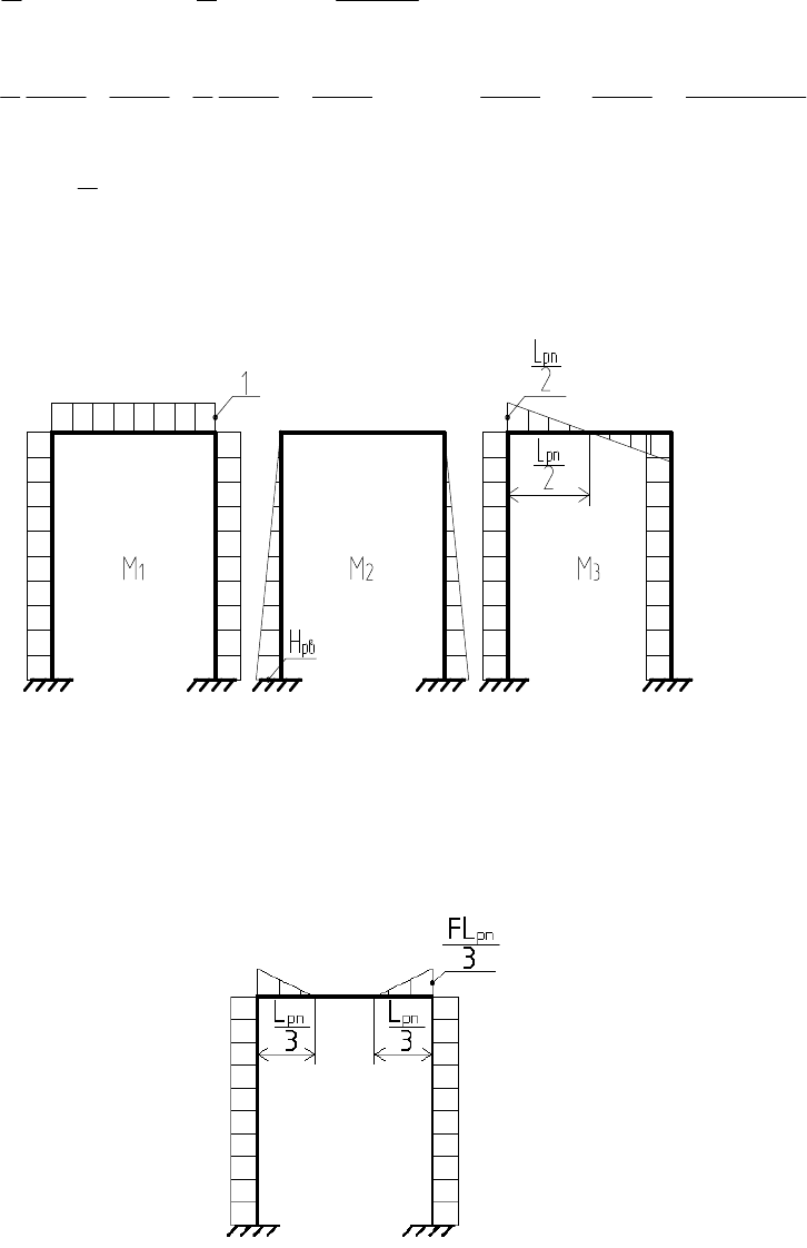
F
НLFL
)Н
LLFL
(
;
2
1
2
2
2
РВРПРП
РВF
НFL
)
FL
H(
;
0
3
F
.
5. Система трех канонических уравнений метода сил с тремя не-
известными и ее решение:
.Х)
НLL
(
;
НFL
Х
Н
ХН
;)
НFLFL
(ХНХ)LН(
РВРПРП
РВРПРВ
РВ
РВРПРП
РВРПРВ
0
0
33
2
0
3
2
9
2
3
23
2
2
3
1
2
2
2
2
1
Из третьего уравнения следует, что Х
3
= 0. В результате имеем
систему двух канонических уравнений с двумя неизвестными:
.)НFLFL(ХНХ)LН(
;НFLХНХН
РВРПРВРВ
06929
023
2
2
2
2
3
1
2
Умножаем первое уравнение на 9, а второе уравнение – на 2Н
РВ
,
получаем преобразованную систему двух канонических уравнений
метода сил с двумя неизвестными:
.)НFLFL(НХНХ)LН(Н
;НFLХНХН
РВРПРВРВ
06218218
091827
2
3
2
2
3
1
2
Из первого уравнения вычитаем второе уравнение и получаем
уравнение следующего вида:
,)]НFL
FL(ННFL[Х)LН(НХН
РПРВРВРПРПРВРВРВ
06
2921827
22
11
2
из которого следует, что Х
1
определяется по расчетной зависимости
)НL(
)НL(FL
LН
FLНFL
Х
РВРП
РВРПРП
РПРВ
РПРВРП
2
32
9189
23
2
1
.
Выражение для Х
1
подставляем в первое преобразованное кано-
ническое уравнение и получаем:
02
2
32
9
3
2
РПРВ
РВРП
РВРПРП
FLХН
)НL(
)НL(FL
, откуда расчетная зави-
симость для Х
2
имеет следующее выражение: