
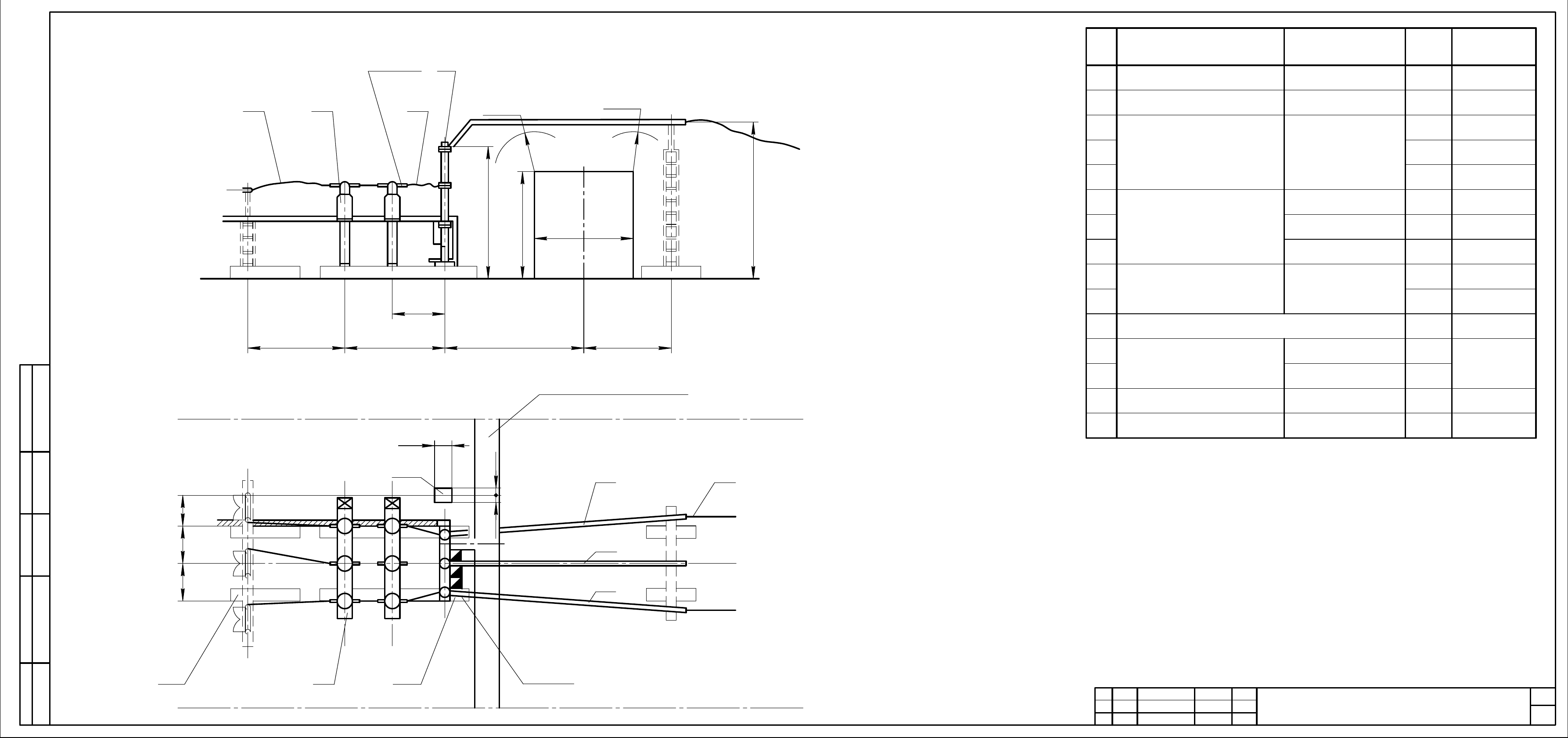
1. Øêàô û çàæèìîâ è îáîãðåâà âûêëþ÷àòåëÿ ïîñòàâëÿþòñÿ çàâîäîì. Ïðè íåîáõîäèìîñòè, çàâîä
ìîæåò ïîñòàâëÿòü ïî äâà øêàô à.
2. Äîïîëíèòåëüíûé áëîê òðàíñô îðìàòîðîâ òîêà îãîâàðèâàåòñÿ â îïðîñíîì ëèñòå íà ÊÒÏÁÐ.
3. Êàáåëüíûå êîíñòðóêöèè ó÷òåíû â ìîäóëÿõ ÎÐÓ 110êÂ.
4. Øòð èõîâîé ëèíèåé ïîêàçàíà ãðàíèöà ìîäóëÿ.
5. Êîíñòðóêöèÿ áëîêà óíèôèöèðîâàíà äëÿ âûêëþ÷àòåëåé ÂÌÒ110-
/
ÓÕË1 è ÂÃÒ110-40/
Ó1.
Áëîê âûêëþ÷àòåëÿ LTB 145D1/B ïðåäíàçíà÷åí äëÿ èñïîëíåíèÿ âûêëþ÷àòåëÿ 1HSB425450M609.
Ìîä óëü Â1Ð. Óçåë âûêëþ÷àòå ëÿ ÂÃÒ-110 II* 40/2500 Ó1, LTB 145D1/B, 3ÀÐ1 FG.
Äëÿ ÊÒÏÁ êðîìå ñõåì 110-12, 110-13, 110-14.
3 5 1 4 2 Cì. ï.2
Êàáåëüíûé
ëîòîê
Êàáåëüíàÿ
øàõòà
2000400
3600
150 0150 01400290
580
390
780
85
82
Ñì. ï.1
Îñü âûêëþ-
÷àòåëÿ
¹
ïîç.
Íàèìåíîâàíèå Òèï
Êîë-âî
Ïðèìå÷àíèå
1
Áëîê âûêëþ÷àòåëÿ
-110 Á 110
-
1-Ý -
1Ñì.ï.5
2 Áëîê òðàíñ-ðîâ òîêà
Á110
-2/Ê-
1+1*
*ïî îïðîñíîìó
ëèñòó
3
Øèíà
Ø-
3
43
53
Ýëåìåíòû ôóíäàìåíò îâ
82 Ëåæåíü ËÆ -4,4 2
â ïîñòàâêó
çàâîäà íå âõîäèò
85 Áëîê ñòåí ïîäâàëà ÔÑ3-8 1
300
Ëèñò
Èçì.
Ëèñò
¹ äîêóì. Ïîäï.
Äàòà
ÍÊÀÈ.670049.028ÒÈ
256
Èíâ. ¹ ïîäë. Ïîäï. è äàòà Âçàì. èíâ. ¹ Èíâ. ¹ äóáë. Ïîäï. è äàòà