
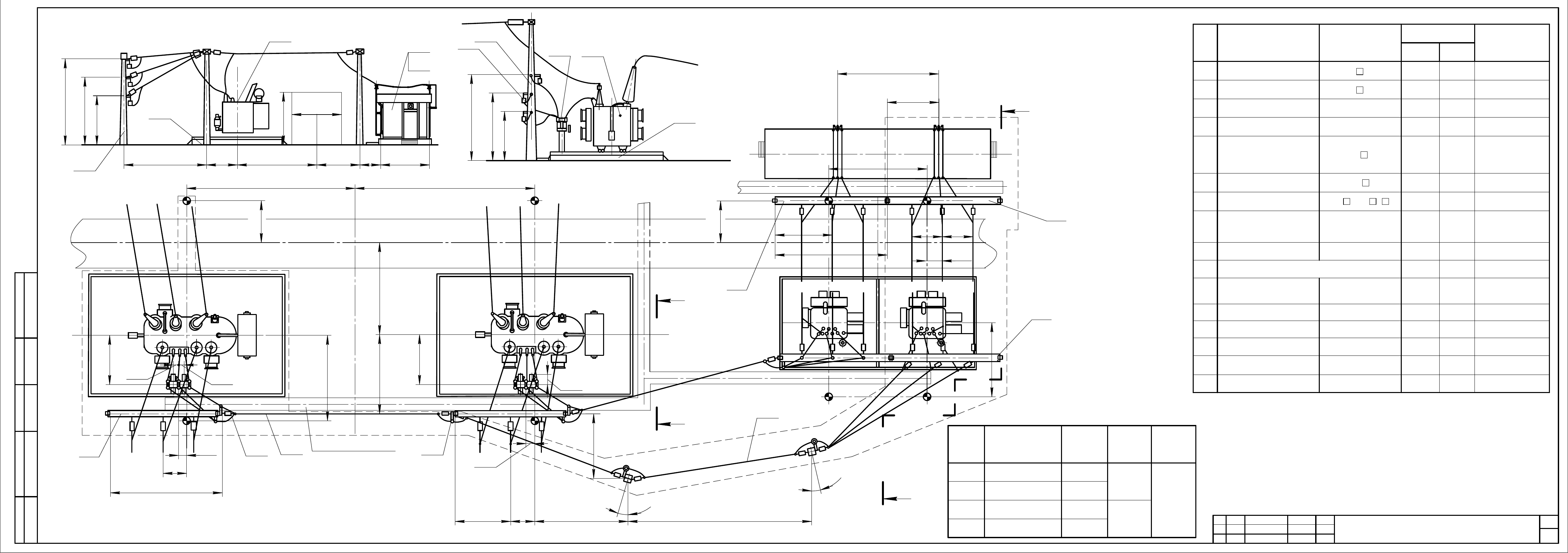
1. Íàçåìíûå êàáåëüíûå êîììóíèêàöèè âûïîëíèòü ïî òèïâîìó ïðîåêòó 4.407-267.
2. Ïðèâÿçêà æåëåçîáåòîííûõ ëîòêîâ âûïîëíÿåòñÿ ïðîåêòíîé îðãàíèçàöèåé.
3. Àíêåðû äëÿ ïåðåìåùåíèÿ òðàíñôîðìàòîð à âûïîëíÿòü ïî òèïîâîìó ïðîåêòó 3.407-103.
4. Ïðèâÿçêà áëîêîâ îïîðíûõ èçîëÿòîðîâ ÎÐÓ 35ê ê îñè òðàíñô îðìàòîðîâ
è îñè ÎÐÓ 35ê ê îñè ÊÒÏÁÐ âûïîëíÿåòñÿ ïðîåêòíîé îðãàíèçàöèåé.
5. Ïåðâàÿ î÷åðåäü ïîñòàâêè îáâåäåíà øòðèõîâîé ëèíèåé.
6. Ïðè ïðèìåíåíèè òðàíñô îðìàòîðîâ ÒÄÒÍ-25000/220/ 35/10
ðàçìåð 7560* èçìåíÿåòñÿ íà 8310.
Ìîäóëü Ò82Ð. Óçåë òðàíñôîðìàò îðîâ 220/35/10(6)ê ñ âûõîäîì
òîêîïðîâîäîâ íèçêîãî íàïðÿæåíèÿ âïðàâî.
Òèï
ìîäóëÿ
Òèï
òðàíñô îðìàòîðà
I íîì.
îøèíîâêè
Êàòåãîðèÿ
èçîëÿöèè
Êëèìàò.
èñïîëíåíèå
Ò82Ð-1
Ò82Ð-2
ÒÄÒÍ-25000/220/ 35/10
ÒÄÒÍ-25000/220/ 35/6
ÒÄÒÍ-40000/220/ 35/10(6)
ñì. Ò82Ð-1
ñì. Ò82Ð-2
1890
3270
1890
3270
À
Á
ÓÕË1
ÓÕË1
Ò82Ð-3
Ò82Ð-4
¹
ïîç.
22
63
Íàèìåíîâàíèå
Áëîê îïîðíûõ èçîëÿòîðîâ 10êÂ
Áëîê îïîðíûõ èçîëÿò îðîâ 35êÂ
Òèï
Á10
-10-
Á35 -130 -
Êîë-âî
²î÷.
6
1
²²î÷.
1
1
Ïðèìå÷àíèå
64
66
68
69
Áëîê îïîðíûõ èçîëÿòîðîâ 10êÂ
Îøèíîâêà òð-à íà
ñòîðîíå 6(10)êÂ
Êðîíøò åéí
Êðîíøò åéí
Á10
-11-
Ø-
11
1
1
1
1
1
1
72
Ê ÐÓ 10(6)êÂ
Øêàô ÒÑÍ
ÊÐÏÇ- 11
Êîìïëåêò ïî
îïðîñíîìó ëèñòó
73 ØÒÂÏ- 11
Êîìïëåêò ñ ÊÐÏÇ ïî
îïðîñíîìó ëèñòó
78 Òð-ð ñèëîâîé ñì. òàáë.2 1 1
 ïîñòàâêó çàâîäà
íå âõîäèò
Ýëåìåíòû ô óíäàìåíòîâ
 ïîñòàâêó çàâîäà
íå âõîäèò
80
81
85
87
Ëåæåíü
Ëåæåíü
Ôóíäàìåíò òðàíñô îðìàòîðà
Ôóíäàìåíòñåêö èé ÊÐ ÏÇ 10(6)êÂ
ËÆ-1,6
ËÆ -2,8
18
8
2
1
ñì. ëèñò 74
ñì. ëèñò 75
Òàáëèöà 2
Òàáëèöà 1
700
900
4000
1900
900
4000
900
4000
900
4000
900
4000
900
900
450
850
850
Òðàíñôîðìàò îð ¹1
Òðàíñôîðìàò îð ¹2
68
66 80
81
6500
4300
69
4800
3500
105 00 105 00
Îñü ÊÒÏÁÐ
3700
1400
5600
3250
6500
2800 3500
700
950950
22
Ñì.ï.4
Îñü ÎÐÓ 35êÂ
Íàçåìíûå êàáåëüíûå
êîììóíèêàöèè (ñì. ï. 1, 2)
Áëîê îïîðíûõ
èçîëÿòîðîâ ÎÐÓ 35 êÂ
À
À
ÇÐÎÌ
35êÂ
73
85
7500
=
13500(ñì. ï. 4)
4000
4300
R
2
5
5
0
R
2
5
5
0
78
À-À
ã
6463
12000
7560
72
87
Ëèñò
Èçì.
Ëèñò
¹ äîêóì. Ïîäï.
Äàòà
ÍÊÀ È.670049.028ÒÈ
318
Èíâ. ¹ ïîäë. Ïîäï. è äàòà Âçàì. èíâ. ¹ Èíâ. ¹ äóáë. Ïîäï. è äàòà