
Ò
è
ï
ì
î
ä
ó
ë
ÿ
Ò
è
ï
ò
ð
à
í
ñ
ô
î
ð
ì
à
ò
î
ð
à
I
í
î
ì
.
î
ø
è
í
î
â
ê
è
Ê
à
ò
å
ã
î
ð
è
ÿ
è
ç
î
ë
ÿ
ö
è
è
Ê
ë
è
ì
à
ò
.
è
ñ
ï
î
ë
í
å
í
è
å
Ò
1
8
Ð
-
1
Ò
Ð
Ä
Í
-
2
5
0
0
0
/
1
1
0
/
1
0
-
1
0
(
6
-
6
)
Ò
Ð
Ä
Í
-
2
5
0
0
0
/
1
1
0
/
1
0
-
6
Ò
Ð
Ä
Í
-
3
2
0
0
0
/
1
1
0
/
1
0
-
1
0
Ò
Ð
Ä
Í
-
4
0
0
0
0
/
1
1
0
/
1
0
-
1
0
Ò
Ä
Ò
Í
-
2
5
0
0
0
/
1
1
0
/
1
0
/
6
Ò
Ð
Ä
Í
-
3
2
0
0
0
/
1
1
0
/
1
0
/
6
-
6
Ò
Ð
Ä
Í
-
4
0
0
0
0
/
1
1
0
/
1
0
/
6
-
6
Ò
Ð
Ä
Í
-
4
0
0
0
0
/
1
1
0
/
1
0
/
1
0
-
6
Ò
Ä
Ò
Í
-
4
0
0
0
0
/
1
1
0
/
1
0
/
6
ñ
ì
.
Ò
1
8
Ð
-
1
ñ
ì
.
Ò
1
8
Ð
-
2
1
8
9
0
3
2
7
0
1
8
9
0
3
2
7
0
À
Á
Ó
Õ
Ë
1
Ó
Õ
Ë
1
Ò
1
8
Ð
-
2
Ò
1
8
Ð
-
3
Ò
1
8
Ð
-
4
Ò
à
á
ë
è
ö
à
2
5
5
0
0
6
5
0
0
4300
4
0
0
0
R
1
6
50
R
1
6
5
0
3
5
0
0
70006000
î
ñ
ü
Ê
Ò
Ï
Á
Ð
85
8
0
0
65 2678
>
2900
73
8
0
0
3
0
0
0
80
2500
800
800
71
22
3
0
0
0
2500
850850
2
2
0
0
Í
à
ç
å
ì
í
û
å
ê
à
á
å
ë
ü
í
û
å
ê
î
ì
ó
í
è
ê
à
ö
è
è
(
ñ
ì
.
ï
.
1
,
2
)
1
4
0
0
66 72
87
66 72
87
3
0
0
0
6
0
0
0
4
0
6
0
4
0
6
0
3
0
0
0
À
À
À-À
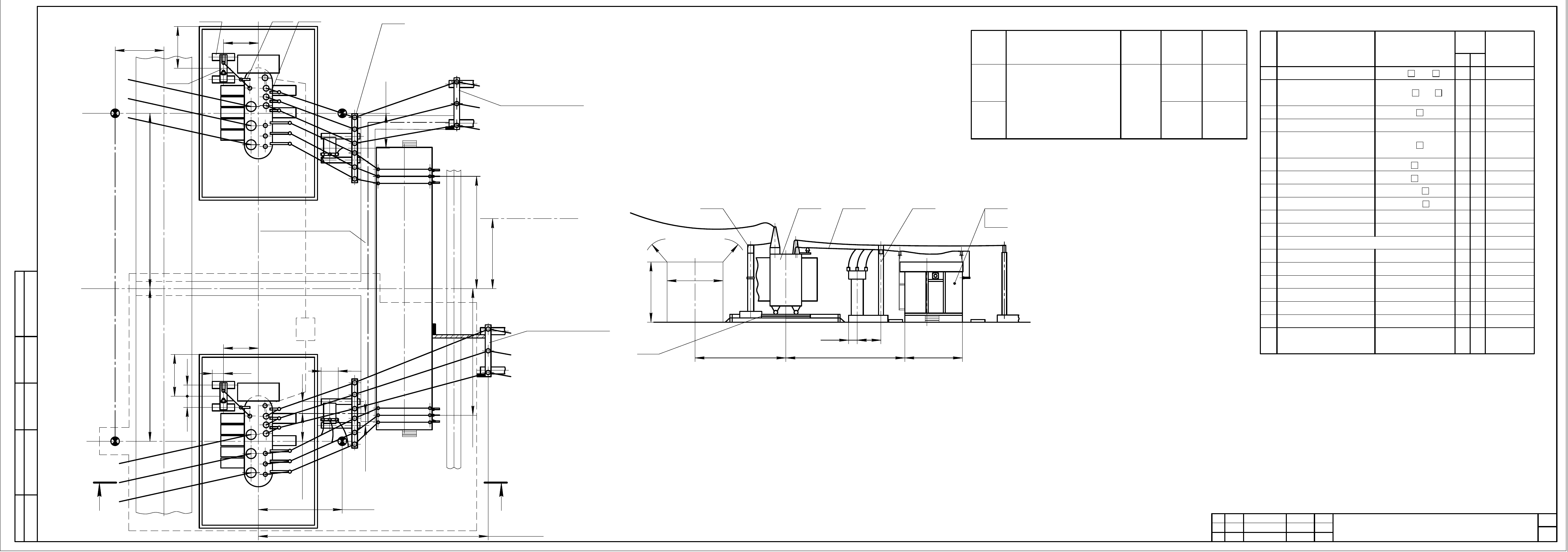
1. Íàçåìíûå êàáåëüíûå êîììóíèêàöèè âûïîëíèòü ïî òèïâîìó ïðîåêòó 4.407-267.
2. Ïðèâÿçêà æåëåçîáåòîííû õ êàáåëüíûõ ëîòêîâ âûïîëíÿåò ñÿ ïðîåêòíîé îðãàíèçàöèåé.
3. Àíêåðû ïåðåìåùåíèÿ òðàíñô îðìàòîðà âûïîëíÿòü ïî ò èïîâîìó ïðîåêòó 3.407-103.
4. Ïåðâàÿ î÷åðåäü ïîñòàâêè îáâåäåíà øò ðèõîâîé ëèíèåé.
5. Ìîäóëü Ò18Ð íåðàññ÷èòàí íà çàìåíó òðàíñô îðìàòîðà ÒÐÄÍ-40000/ 110 íà ñëåäóþùèé
ïî ìîùíîñòè, ò. å. ÒÐÄÍ-63000/110.
¹
ï
î
ç
.
2
2
Í
à
è
ì
å
í
î
â
à
í
è
å
Áëîê îïîðíûõ èçîëÿòîðîâ 10êÂ
Ò
è
ï
Á
1
0
-
1
1
-
Ê
î
ë
-
â
î
²
î
÷
.
1
²
²
î
÷
.
1
Ï
ð
è
ì
å
÷
à
í
è
å
2
6
6
5
6
6
Áëîê ÇÎÍ-110è ÎÏÍ
Ø
è
í
à
Î
ø
è
í
î
â
ê
à
ò
ð
-
ð
à
í
à
ñ
ò
î
ð
î
í
å
6
(
1
0
)
ê
Â
Á
1
1
0
-
2
8
-
Ø
-
Ø
-
1
1
1
1
1
1
7
1
Ê
ð
î
í
ø
ò
å
é
í
1
1
7
2
Ê
Ð
Ï
Ç
1
0
(
6
)
ê
Â
Øêàô ÒÑÍ
Ê
Ð
Ï
Ç
-
1
1
Êîìïëåêò ïî
îïðîñíîìó ëèñòó
7
3
Ø
Ò
Â
Ï
-
1
1
Êîìïëåêò ñ ÊÐÏÇ ïî
îïðîñíîìó ëèñòó
7
8
Ò
ð
-
ð
ñ
è
ë
î
â
î
é
ñ
ì
.
ò
à
á
ë
.
2
1
1
 ïîñòàâêó çàâîäà
íå âõîäèò
Ý
ë
å
ì
å
í
ò
û
ô
ó
í
ä
à
ì
å
í
ò
î
â
 ïîñòàâêó çàâîäà
íå âõîäèò
8
0
8
1
8
5
8
7
Ë
å
æ
å
í
ü
Ë
å
æ
å
í
ü
Ôóíäàìåíò òðàíñôîðìàò îðà
Ô
ó
í
ä
à
ì
å
í
ò
ñ
å
ê
ö
è
é
Ê
Ð
Ï
Ç
1
0
(
6
)
ê
Â
Ë
Æ
-
1
,
6
Ë
Æ
-
2
,
8
8
4
2
2
ñ
ì
.
ë
è
ñ
ò
7
2
ñ
ì
.
ë
è
ñ
ò
7
5
Ò
à
á
ë
è
ö
à
1
Ìîäóëü Ò18Ð. Óçåë òðàíñôîðìàòîðîâ 110/10-10(6-6) (110/10-6;110/10/6)ê è ÊÐÏÇ.
Ëèñò
Èçì.
Ëèñò
¹
ä
î
ê
ó
ì
.
Ï
î
ä
ï
.
Äàòà
ÍÊÀÈ.670049.028ÒÈ
2
7
5
Èíâ. ¹ ïîäë. Ïîäï. è äàòà Âçàì. èíâ. ¹ Èíâ. ¹ äóáë. Ïîäï. è äàòà
Ê
î
ï
è
ð
î
â
à
ë
Ô
î
ð
ì
à
ò
A
4
•
4