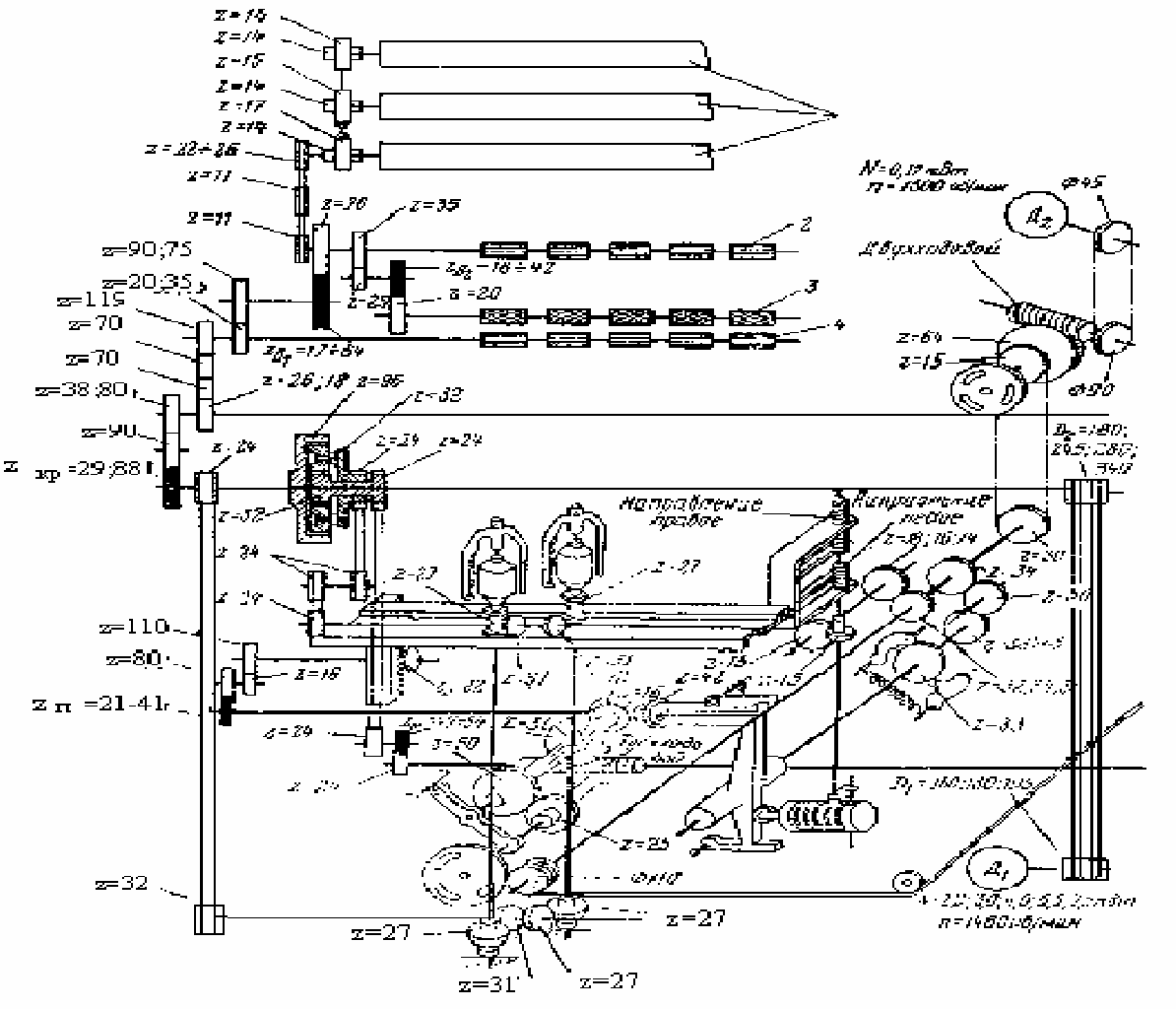
11. Определить конста нту крутки на машине Р-260-5 (см. рис.120) и число зубьев
сменной крутильной шестерни z
кр
при выработке ровницы 833 текс из волокна длиной
32/33 мм. Коэффициент крутки выбирают по таблице.
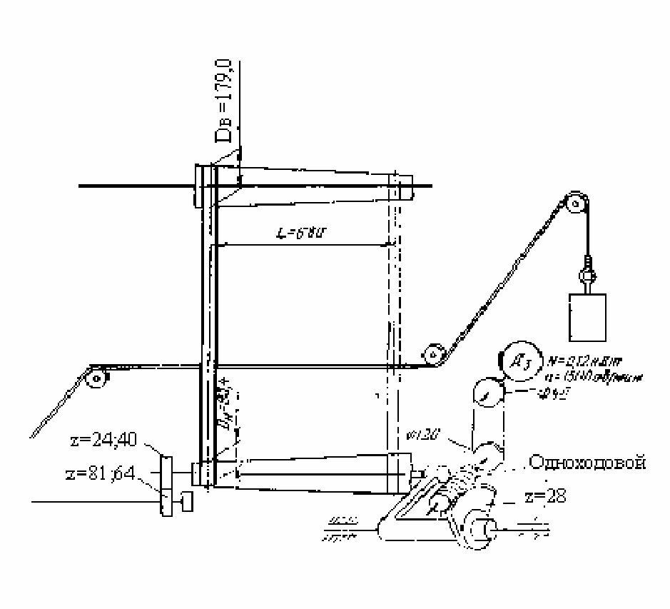
12. Определить константу крутки на машине Р-168-3 (см. рис.119) и число
зубьев сменной крутильной шестерни z
кр
при выработке ровницы 111 текс с
коэффициентом крутки
Т
= 11,33.
13. Определить коэффициент крутки
Т
, крутку К и число зубьев сменной
крутильной шестерни z
к
при выработке тонкой ровницы 133 текс на машине Р-168-3
(см. рис.119) из волокна длиной 35/37 мм.
14. Определить, какой был принят коэффициент крутки при выработке
ровницы 833 текс на тазовой ровничной машине Р-260-5 (см.рис.120), если частота
вращения заднего цилиндра n
2
= 46,2 мин
-1
, вытяжка 4,2 и частота вращения
веретен n
в
= 800 мин
-1
.
15. Определить, какой был принят коэффициент крутки при выработке
ровницы 111 текс на машине Р-168-3 (см. рис.119), если частота вращения веретен
n
в
= 1100 мин
-1
и переднего цилиндра n
5
= 95 мин
-1
.
16. Определить крутку ровницы, вырабатываемой на тазовой ровничной
машине Р-260-5 (см. рис.120), если число зубьев крутильной шестерни z
кр
= 37. При
этом определить также, какой был принят коэффициент крутки, если вырабатывают
ровницу линейной плотностью 833 текс.
17. Определить, при каком коэффициенте крутки
Т
и частоте вращения
веретена и переднего цилиндра вырабатывают ровницу 133 текс на машине Р-168-3
(см. рис.119), если частота вр ащения главного вала 537 мин
-1
и число зубьев
сменной крутильной шестерни z
кр
= 54.
18. Определить крутку ровницы, частоту вращения веретен и переднего
цилиндра на ровничной машине Р-260-5 (см. рис.120), если диаметр блока на валу
электродвигателя 180
мм, на главном валу 245 мм и число зубьев сменной
крутильной шестерни z
кр
= 37.
19. Определить частоту вращения катушки на машине Р-260-5 (см. рис.120) в
начале и конце наматывания при диаметре блока на валу электродвигателя 180 мм,
на главном валу 245 мм, числе зубьев крутильной шестерни z
кр
= 40 зуб. и
мотальной z
м
= 51.
20. Определить диаметр пустой катушки в начале наматывания и полной
катушки в конце наматывания на ровничной машине Р-260-5 (см. рис.120) при
сменных блоках, указанных в задаче 22, числе зубьев крутильной шестерни z
кр
=
50 зуб. и мотальной z
м
= 52 зуб.
21. Определить линейную скорость каретки (см/мин) в начале и в конце
наматывания ровницы на машине Р-260-5 (см. рис.120) при диаметре блока на валу
электродвигателя 160 мм; на главном валу 180 мм, числе зубьев крутильной шестерни
z
кр
= 40 зуб., подъемной z
п
= 40 и шаге рейки t = 0,785 см.
22. Определить время, необходимое для наработки полного съема на машине
Р-260-5 (см. рис.120), если масса ровницы на катушке 1,5 кг, линейная плотность
ровницы 1100 текс, диаметр сменного блока 210 мм, число зубьев крутильной
шестерни z
кр
= 40 зуб.
23. Определить время, необходимое для наработки полного съема на машине Р-
168-3 (см. рис.119), если масса ровницы на катушке 455 г, линейная плотность ровницы