Файлы
Обратная связь
Для правообладателей
Найти
Пособие по проектированию и армированию монолитных железобетонных зданий
Файлы
Стандарты
Назад
Скачать
Подождите немного. Документ загружается.
Рисунок 2.13
- Детали арматурных выпусков под колонны цокольного этажа (см.
рис. 2.10
)
База нормативной документации: www.complexdoc.ru
161
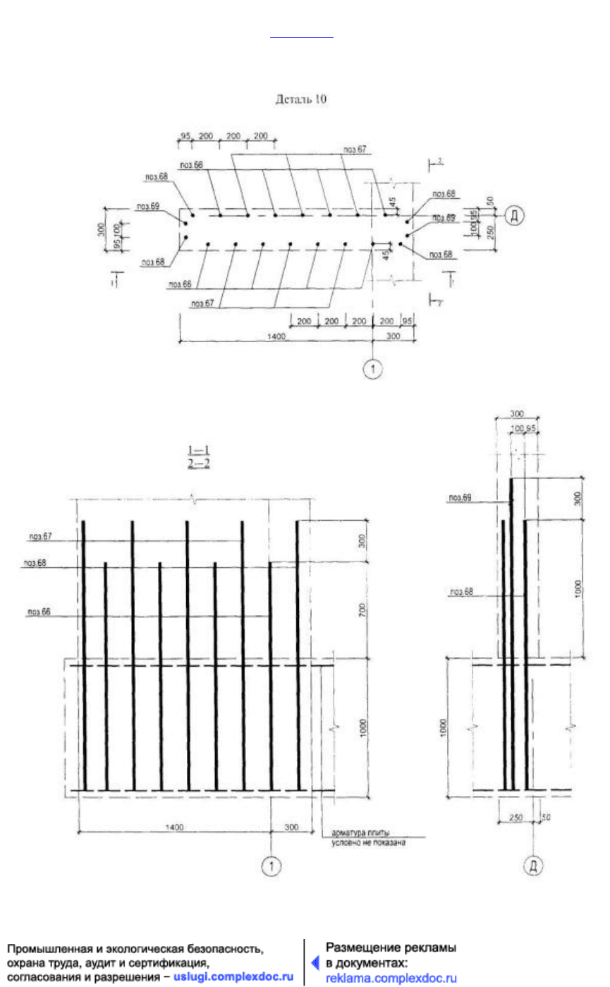
Рисунок 2.14
- Детали арматурных выпусков из фундаментной плиты под колонны
цокольного этажа (см.
рис. 2.10
)
База нормативной документации: www.complexdoc.ru
162
База нормативной документации: www.complexdoc.ru
163
Рисунок 2.15
- Фрагмент фундаментной плиты здания каркасной конструктивной
схемы. Нижнее армирование, первый слой
База нормативной документации: www.complexdoc.ru
164
База нормативной документации: www.complexdoc.ru
165
Рисунок 2.16 - Фрагмент фундаментной плиты здания каркасной конструктивной
схемы. Нижнее армирование, второй слой
База нормативной документации: www.complexdoc.ru
166
База нормативной документации: www.complexdoc.ru
167
Рисунок 2.17
- Фрагмент фундаментной плиты здания каркасной конструктивной
схемы. Нижнее армирование, третий слой
База нормативной документации: www.complexdoc.ru
168
База нормативной документации: www.complexdoc.ru
169
Рисунок 2.18
- Фрагмент фундаментной плиты здания каркасной конструктивной
схемы. Верхнее армирование, первый слой
База нормативной документации: www.complexdoc.ru
170
‹
1
2
...
14
15
16
17
18
19
20
...
26
27
›