Файлы
Обратная связь
Для правообладателей
Найти
Пособие по проектированию и армированию монолитных железобетонных зданий
Файлы
Стандарты
Назад
Скачать
Подождите немного. Документ загружается.
База нормативной документации: www.complexdoc.ru
171
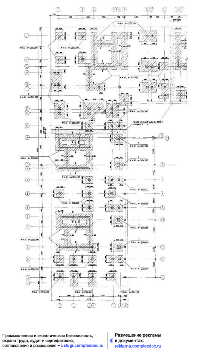
Рисунок 2.19
- Фрагмент фундаментной плиты здания каркасной конструктивной
схемы. Верхнее армирование, второй слой
База нормативной документации: www.complexdoc.ru
172
База нормативной документации: www.complexdoc.ru
173
Рисунок 2.20
- Фрагмент фундаментной плиты здания каркасной конструктивной
схемы. Поперечное армирование
База нормативной документации: www.complexdoc.ru
174
База нормативной документации: www.complexdoc.ru
175
Рисунок 2.21
- Фрагмент фундаментной плиты здания каркасной конструктивной
схемы. Выпуски
Рисунок 2.22
- Примеры расположения выпусков из фундаментной плиты под
колонны
База нормативной документации: www.complexdoc.ru
176
Рисунок 2.23
- Узлы армирования фундаментной плиты здания каркасной
конструктивной схемы (см. рис.
2.15
÷
2.20
)
База нормативной документации: www.complexdoc.ru
177
Рисунок 2.24
- Фрагмент фундаментной плиты со свайным основанием, столбчатых
и ленточных фундаментов. Опалубка
База нормативной документации: www.complexdoc.ru
178
Рисунок 2.25
- Элементы фундаментной плиты со свайным основанием,
армирование ленточных фундаментов. Разрезы 1 - 1...3-3 (опалубка). Узел 1 (см.
рис. 2.4
)
База нормативной документации: www.complexdoc.ru
179
Рисунок 2.26
- Армирование фундаментной плиты со свайным основанием,
столбчатых и ленточных фундаментов. Разрезы 1-1...3-3
База нормативной документации: www.complexdoc.ru
180
‹
1
2
...
15
16
17
18
19
20
21
...
26
27
›