
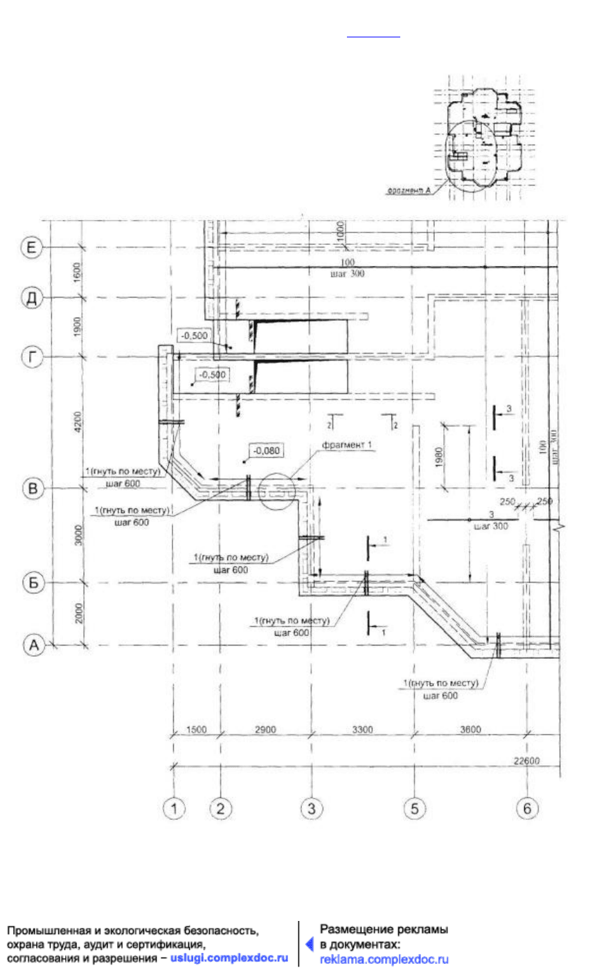
Рисунок 2.37 - Фрагмент перекрытия цокольного этажа здания конструктивной
схемы с несущими стенами (см. рис. 2.1). Опалубка
Рисунок 2.38 - Фрагмент перекрытия цокольного этажа здания конструктивной
схемы с несущими стенами. Нижнее армирование
База нормативной документации: www.complexdoc.ru
194